賃貸マンションビレッジハウス大淀3号棟 5階 3DK
情報更新日: 2026/03/09 次回更新日: 2026/03/23
| 賃料 管理費 |
敷金 礼金 |
最寄り駅 | 所在地 | 間取り 専有面積 |
築年数 | 階数 |
|---|---|---|---|---|---|---|
| 4.31万円 - |
- - |
近鉄吉野線/下市口駅 徒歩14分 近鉄吉野線/越部駅 徒歩35分 |
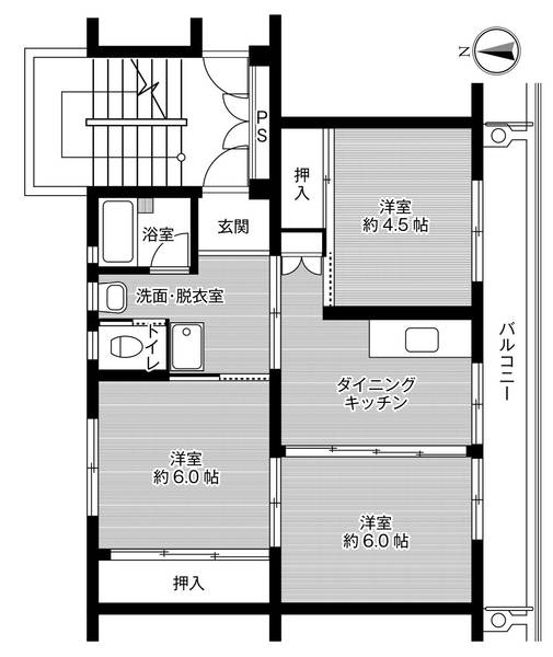
奈良県吉野郡大淀町大字下渕660-1 MAP | 3DK 53.96 m2 |
1979/05 | 5階 / 5階建て |

- 近鉄吉野線/下市口駅 徒歩14分
近鉄吉野線/越部駅 徒歩35分

- 奈良県吉野郡大淀町大字下渕660-1 MAP
ビレッジハウス大淀3号棟 5階 3DKの賃貸情報
| 物件名 | ビレッジハウス大淀3号棟 | 賃料 | 4.31万円 |
|---|---|---|---|
| 管理費 | - | 敷金 / 礼金 | - / - |
| 更新料 | - | 保証金 | - |
| 間取り | 3DK | 専有面積 | 53.96 m2 |
| 所在 / 総階 | 5階 / 5階建て | 取引態様 | 仲介 |
| 賃借種別 | - | 方角 | 南 |
| 建物構造 | 鉄筋コンクリート造 | 築年数 | 1979/05 |
| 入居日 | 即時 | その他の費用 | 退去時クリーニング費用 65,291円 |
| 駐車場 | 空有 0円 | 保険 | 1万円 |
| 保証会社 | - | ||
| 物件設備 | ガス(プロパン) / 排水(下水) / バス・トイレ別 / コンロ種別(ガス) / コンロ口数(二口) / 給湯 / 追い焚き / エアコン / 室内洗濯機置き場 / バルコニー / internet対応(その他インターネット) / 二人入居可 / ペット相談 | ||
| 物件名 | ビレッジハウス大淀3号棟 |
|---|---|
| 賃料 | 4.31万円 |
| 管理費 | - |
| 敷金 / 礼金 | - / - |
| 更新料 | - |
| 保証金 | - |
| 間取り | 3DK |
| 専有面積 | 53.96 m2 |
| 賃借種別 | - |
| 方角 | 南 |
| 所在 / 総階 | 5階 / 5階建て |
| 取引態様 | 仲介 |
| 建物構造 | 鉄筋コンクリート造 |
| 築年数 | 1979/05 |
| 保証会社 | - |
| 保険 | 1万円 |
| 駐車場 | 空有 0円 |
| 入居日 | 即時 |
| その他の費用 | 退去時クリーニング費用 65,291円 |
| 物件特徴 | ガス(プロパン) / 排水(下水) / バス・トイレ別 / コンロ種別(ガス) / コンロ口数(二口) / 給湯 / 追い焚き / エアコン / 室内洗濯機置き場 / バルコニー / internet対応(その他インターネット) / 二人入居可 / ペット相談 |










ビレッジハウス大淀3号棟:下市口駅にも近くて便利。室内設備は追い焚き・エアコンなどが揃っており、とても充実しています。こちらの物件は駅まで徒歩で14分で到着します。お部屋にも運命の出会いがきっとあります。スモッティー王寺店ではそんな出会いをサポート致しますので、まずは0745-44-3160/info@life-life.co.jpからお問い合わせください。 / ペット可
車にいたずらされにくい、敷地内駐車場の空きがあります。室内設備はエアコン・追い焚きなどが揃っているので、快適に過ごしやすいお部屋になります。駅近くに立地する物件で、徒歩14分程でアクセスできます。快適な住まいを吉野郡大淀町エリアで手に入れましょう。スモッティー王寺店へのご連絡は0745-44-3160かinfo@life-life.co.jpにてお願いします。